Just finished up this master bath transformation. Check out the before and afters:
- before
- before
- before
- before
- before
- before
- before
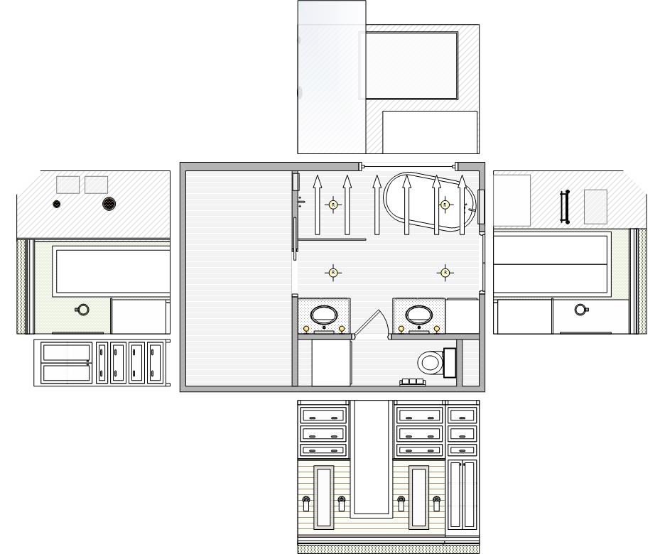
This one has all the bells and whistles including heated floors and 10′ of linear drains along the far wall. I had a lot of fun collaborating with these clients and coming up with a design and layout that worked for their busy lifestyle. Planning was key to making it all come together. We created detailed drawings of the overall layout, custom cabinetry, and even the plan for the heated floor system.
Adding the finishing touches is my favorite part. I love when it all comes together this well. Thanks to my clients for letting me ‘play’ in their master bathroom. Hope you guys enjoy this relaxing space for years to come!























Wow! What a fantastic transformation. Absolutely gorgeous!!
LikeLike
Love that linear drain! I want one! Very well done! The saying “like night and day” never fit before and after pictures so perfectly.
LikeLike